![]() | |
|
皇冠级的超强品质 | |
![]() | |
|
无轴负载式无齿轮曳引机 双驱动永磁同步高速无齿轮曳引机 | |
![]() | |
|
来自德国巴登符登堡州的科技 | |
![]() | |
|
西门子控制系统 三星电梯的主控系统是采用了原装进口的德国西门子电梯控制电脑,该系统以优秀的品质和高超的德国技术,特别是采用了低功耗、高集成度、长寿命的器件及世界先进的贴片技术,其特有的世界先进的通讯控制技术,使得电 梯井道内只要二根信号线就可以完成原来需要上百根线才能完成的功能。 三星电梯的控制系统除了德国西门子控制系统的优势外,还采用与西门子有着密切合作关系的安川公司的变频调速系统,它除了是世界上最大的变频器制造商之外,还有国际先进的技术优势,其特点是: 采用当今先进的智能IGBT功率模块,斩波频率高达17KHZ,实现电机完全静音运行;采用专用的高速数字信号处理器(DSP),有效地减少了IGBT的开关损耗,使能量转换更全面,电梯运行更平稳,代表了当今磁通矢量控制技术 的高水平; 电梯的运行速度(米/秒)、加减速(米/秒平方)、加减速度变化率(米/秒立方)、以及平层修正值(毫米),全部按实际值设定,三星电梯的拖动系统稳处同行业国际先进水平。 人性化设计轿厢 工匠创作 | |
![]() | |
|
度身定制 | |
![]() | |
| 高效节能绿色环保 Energy Saving, High Efficient, Environment Friendly 三星高效节能绿色环保电梯,引领21世纪电梯节能新风尚 三星电梯在2001年率先在全国引进了电梯能量再生技术,使电梯在轻载上行和重载下行的状态下非但不耗电,并且将电梯处于发电状态的电能反馈到电网,大大降低了电梯的用电量。三星电梯一直致力于向市场提供高效节能绿色环保电梯。 可以把再生电能97%回馈到电网,回收利用 三星电梯于2010年推出的新能源电瓶电梯是拥有国家专利(专利号201020149696)的创新性智能化节能电梯,该技术采用电瓶作为动力电源和蓄电装置,采用永磁轻型曳引机进行动力驱动,利用风力发电及太阳能发电系统和电梯的再生能量反馈装置共同对蓄电池进行充电,并采用冗余配置方式结合电子自动检测装置确保电源的充足供给,并且采用安全电压,充分保证安全可靠。 该项技术不仅做到了节能环保,而且在没有市电供电的情况下让使用电梯成为可能。该项技术标志着我国自主创新的电梯开始进入由“耗能”向“节能”甚至“造能”转变的新阶段,是我国电梯领域采用新能源技术的的新突破,为电梯产业大幅度提高能源利用效率树立了新标杆。 三星电梯成功引领电梯工业绿色节能新风尚,共同迈进更加绿色环保的城市未来! | |
![]() | |
![]() | |
|
|
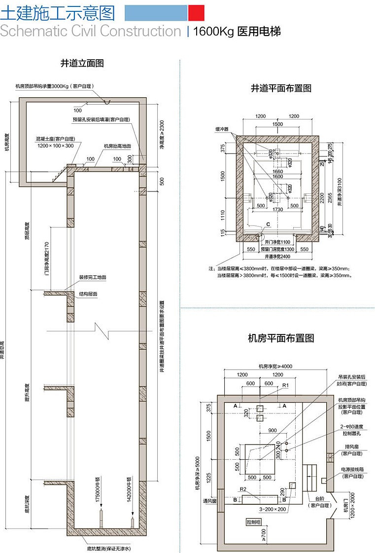
土建施工示意图 业主和土建承包商应完成的工作 |
| 08 当相邻两层门地坎间的距离大于11m时,其间应设置井道安全门,安全门的尺寸不得小于350mm宽x1800高,此门不得向井道内开启。 09 底坑整浇,不得渗水。 10 根据技术参数表中的要求应设置供电梯使用的独立电源:该电源需设置带保护的开关且上锁,电压波动范围不得超过±7%,电源零线和接地线应分开,且接地电阻不得大于4Ω,并将此电源接到机房靠门侧。 11 图中所有载荷,除特别注明外都含冲击修正量,井道墙和底坑的强度必须能承受。 12 如不预留吊装孔,需付一定起吊费用。 13 井道无需牛腿。 14 若顶层高度不够,则需要抬高机房地面。 15 根据国家质检总局技术规范TSGT7001相关要求,机房必须专用,不得用于电梯以外的其他方面用途。 | |









